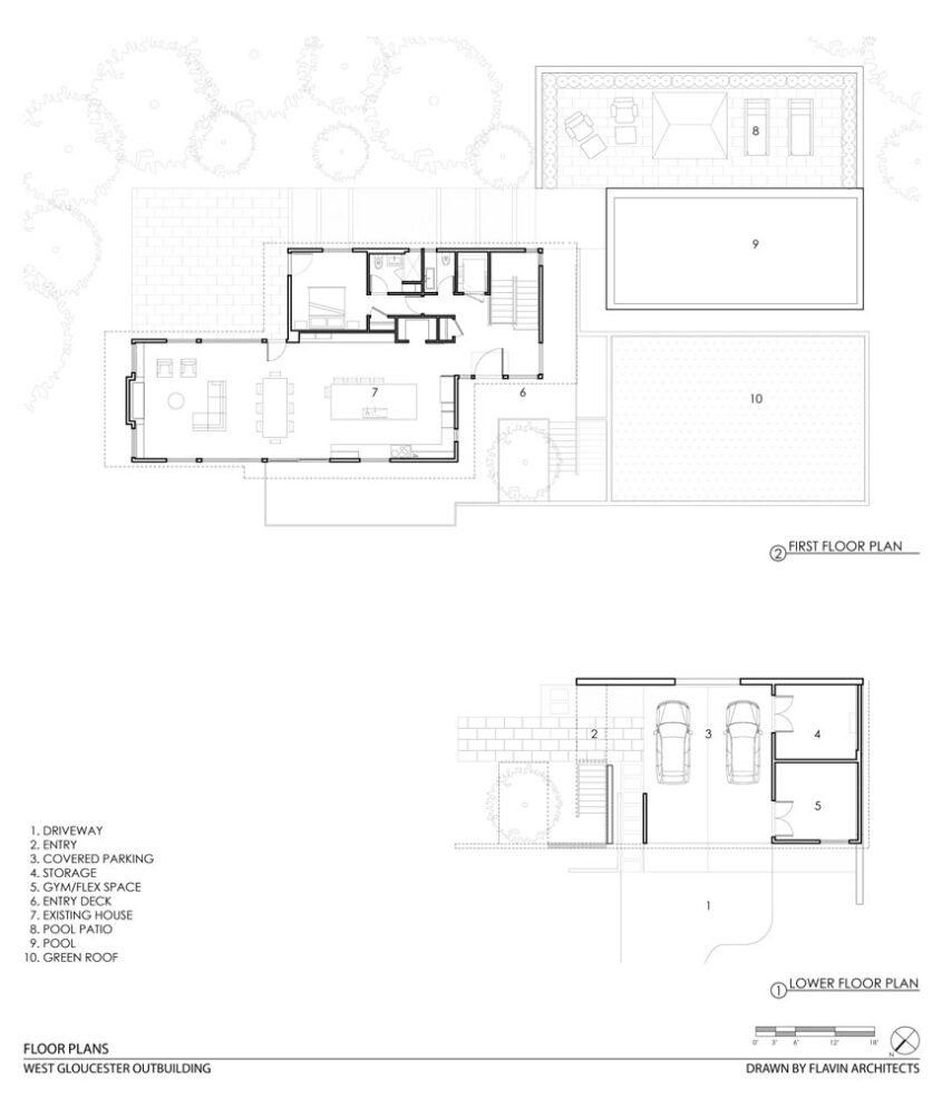
Pool + Carport Expansion
We designed West Gloucester House for our clients on a steep site overlooking the Annisquam River on Cape Ann, MA. After spending more time in the home, our client asked us to execute a master plan for the property, rethinking the entry sequence to the home, adding a pool, outdoor gathering space, workout room, and additional storage. The multi-use carport space now allows for two covered parking spots and doubles as a ping pong court. The structure also creates privacy for the new outdoor pool area, blocking views from the road.
The floor-to-ceiling windows in the new addition connect you to the adjacent tidal marsh. Our expansion of the structure uses the same visual language as the original home - strong horizontals, galvanized steel, dark cladding, and Western red cedar soffits. Our design process begins with learning about our client’s daily patterns and translating those patterns into a vision for the home and property, building houses that fit the lives of our clients. As our client’s needs changed, Flavin Architects could remain a trusted partner to help adapt the property over time.









Credits
General Contractor
Brookes + Hill Custom Builders
Landscape Architect
Wagner Hodgson Landscape Architecture
Structural Engineer
Webb Structural Services
Surveyor + Civil Engineer + Wetlands Specialist
The Morin-Cameron Group
Structural Steel
Kelley Welding
Photographer
Megan Booth Photography







