Step inside the Raymond Loewy house, a modernist hideaway in the California desert designed by architect Albert Frey
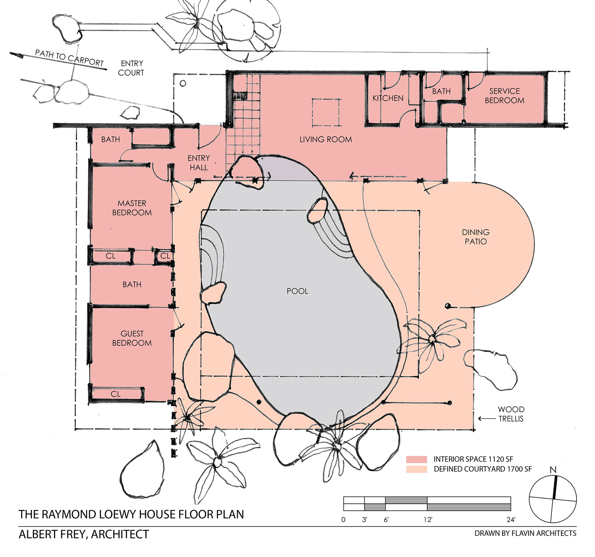
The Raymond Loewy house in Palm Springs, California, designed by Albert Frey for the celebrated industrial designer in 1946, isn’t what you might expect of a home created for a celebrity client. Instead of a large, lavish house, Frey’s design is pint-size, built with low-cost materials and beautifully integrated into the landscape, an innovative approach that continues to be relevant.
The house punches above its weight by making a seamless connection between the home’s interior, the exterior courtyard and the desert beyond. Frey’s approach to design, so different from the Spanish-style homes popular at the time, helped create a new style of architecture called Desert Modern.
(Top photo by David A. Lee)










